Nice (06000) Appartement 3 pièces de 63,1 m² avec terrasse de 10,2 m² dans une résidence de standing avec piscine
EXCLUSIVITE - Corniche Fleurie / Jardin Botanique
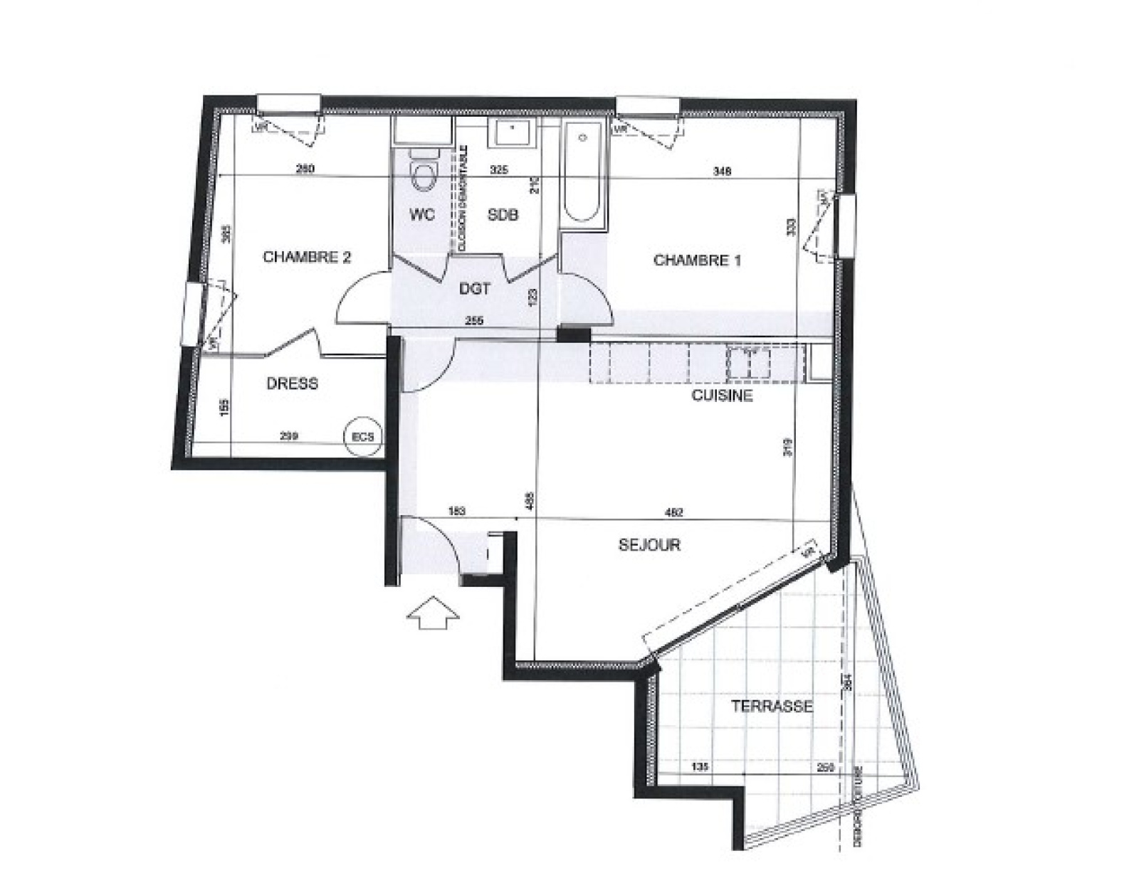
Appartement 3 pièces de 63,1 m² avec terrasse de 10,2 m², au 3ème et dernier étage avec ascenseur dans une résidence de standing avec piscine.
Lumineux et bien distribué, il offre un séjour avec cuisine ouverte donnant sur une terrasse avec vue dégagée sur la mer, les collines et le cap d'Antibes, deux chambres dont une avec dressing/buanderie, une salle de bain et un WC séparé. Un box fermé au sous-sol du batiment est possible à l'achat pour 25.000€.
Emplacement calme et recherché à proximité des commerces, écoles, et transports.
Les informations sur les risques auxquels ce bien est exposé sont disponibles sur le site Géorisques
Montant estimé des dépenses annuelles d'énergie pour un usage standard est compris entre 596 € et 806 € . Prix moyens des énergies indexés sur les années 2021, 2022 et 2023 (abonnements compris).
-
Commerces et santé
-
Loisirs
-
Ecoles
-
Transports
-
Pratique
Détails des diagnostics énergétiques
Montant estimé des dépenses annuelles d'énergie pour un usage standard est compris entre 596 € et 806 € . Prix moyens des énergies indexés sur les années 2021, 2022 et 2023 (abonnements compris).
